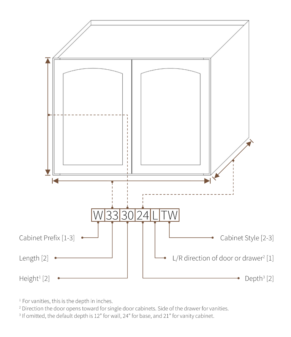
Understanding the TW Model Numbering System

Wall Cabinets Models

Single Door Wall Cabinet
Double Door Wall Cabinet
Wall Blind Corner Cabinet
Wall Diagonal Corner Cabinet
Wall Bridge Cabinet
Wall Bridge Cabinet 24" Depth
Microwave Cabinet
Wall End Shelf
Wine Rack Cabinet
Glass Holder

Base Cabinets Models

9" Base w/ Roll Out Tray
Single Door Base Cabinet
Double Door Base Cabinet
Sink Base Cabinet
Drawer Base Cabinet
Blind Base Corner Cabinet
Lazy Susan Base Corner Cabinet
Sink Base Corner Cabinet
Base End Shelf

Tall Cabinets Models

Single Door Wall Pantry
Double Door Wall Pantry
Oven Cabinet

Accessories

Base Filler
Wall Filler
Dishwasher Panel
Refrigerator Panel
Roll Out Tray
Roll Out Garbage Tray
Base/Wall Fake Door
Panels & Plywood
Scribe Molding
Angle Corner Molding
Crown Molding 1⅝"
Crown Molding 2⅜"

Vanity Cabinets Models

Door Only Vanity
Drawer Only Vanity
Single Door Drawer Vanity
Double Door Drawer Vanity